964551800
Profesional
GRUPIN, S.A.
Referencia del anuncio
0
1 /15
4327 m²
Más Información
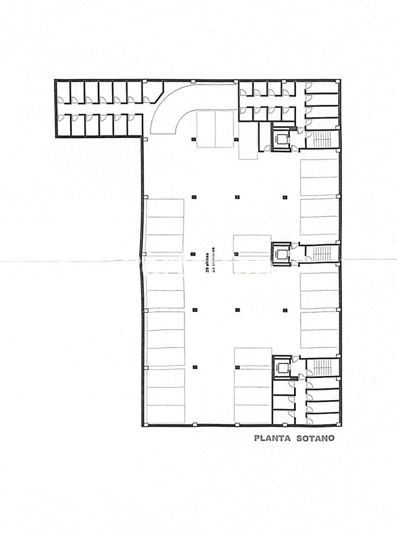
En Burriana, SOLAR URBANO céntrico, situado en calle Federico García Moliner, nº 27. Muy bien ubicado, a 3 minutos del centro, rodeado de cafeterías, comercios, supermercados MERCADONA, CONSUM, MAS Y MAS, DIA, ALDI y LIDL, colegios, Instituto, Centro de salud, piscina municipal, polideportivo, muy cerca de la playa, de los puertos pesquero y deportivo, así como del paraje natural protegido "Clot de la Mare de Deu". Presentamos estudio de construcción del edificio con todas las plantas: sótano, baja, 1ª, 2ª, 3ª y 4ª. El conjunto del edificio estaría formado por 29 viviendas (27 viviendas de 3 dormitorios + 2 baños, con superficie útil de 96 m2 y 2 viviendas de 2 dormitorios + 2 baños), 29 plazas de garaje y 29 trasteros en sótano. Se puede reducir la superficie del vestidor de la vivienda de 3 hab. a 90 m2 útiles. La superficie de la parcela es de 1.098 m2 y su edificabilidad 4.327 m2t. PRECIO ALQUILER SOLAR URBANO : 1.600 €/mes + IVA. PRECIO VENTA SOLAR URBANO: 399.000 € + IVA. El precio de venta y alquiler no incluye IMPUESTOS ni OTROS GASTOS. Ref: X00092.
Actualizado: Hoy
2 vistas
Burriana / Borriana, Plana Baixa, Castellón
Recomendaciones
Dinos qué error has visto
Terreno en alquiler , Burriana / Borriana, Castellón
Esta información se transmite a nuestro equipo de calidad en PortalTop y al anunciante, pero no se le identificará.
Hacer una contraoferta
Precio actual: 0 euros
Recibe una alerta si hay una rebaja de precio
¡Gracias por contactarnos!
Tu mensaje se ha enviado a GRUPIN, S.A..
964551800
Profesional
GRUPIN, S.A.
Referencia del anuncio
0
¿Qué es un período de prueba?
El período de prueba te permite publicar tu propiedad completamente gratis hasta el 2025.12.01. Para ello, debes vincular tu tarjeta en la sección 'Suscripciones'.