Chalet Venta Islas Baleares

es
Español
English
Українська
Русский
Añadir nuevo listado Anuncio

3 dormitorios

2 baños

105 m2

79

Volver a la búsqueda

455 000

Chalet Venta Islas Baleares

Enviar
Profesional New perfect house

455 000 4 333 €/m²

Chalet Venta Islas Baleares

Palma de Mallorca, Mallorca , Baleares

Ver el mapa

3 dormitorios

2 baños

105 m²

79

Más Información

  • Garaje

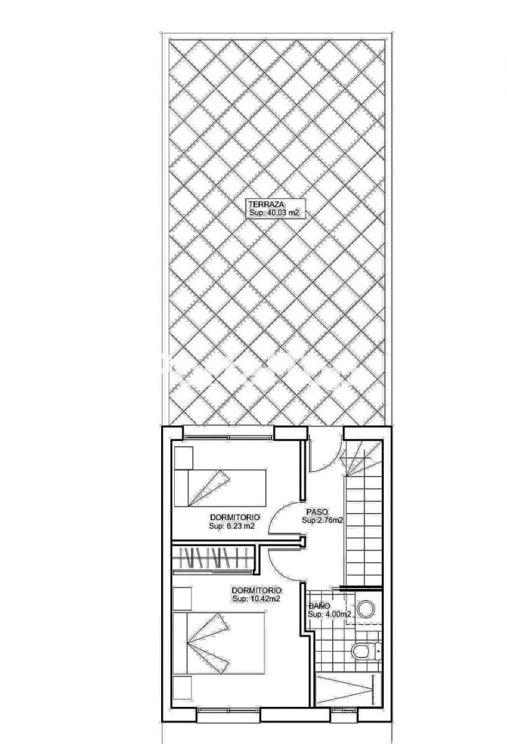
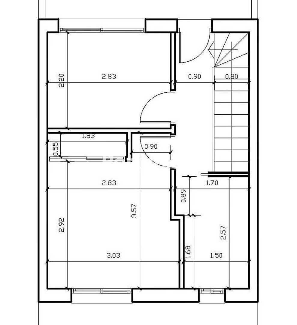
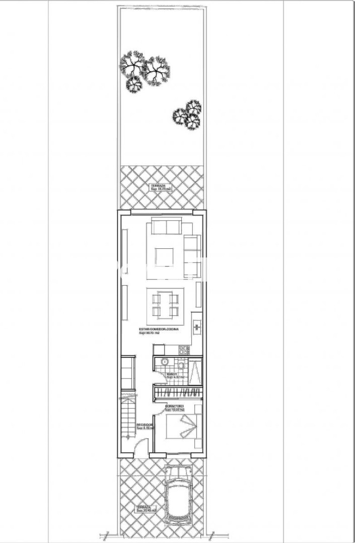
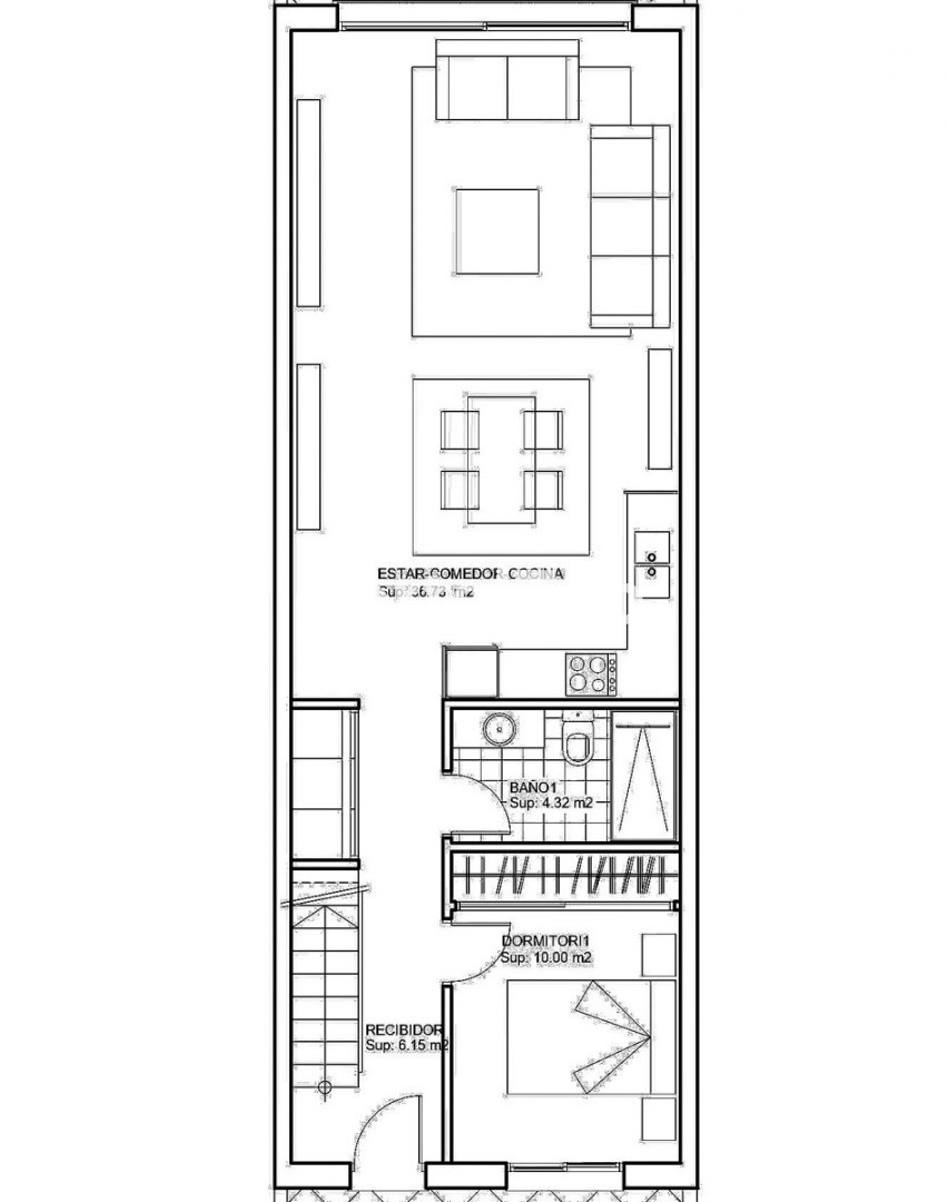
CHALET ADOSADO EN CONSTRUCCION, OBRA Nueva, unifamiliar entre medianeras en S`Hostalot, Palma, un adosado en venta y está en construcción de 151 m de Solar, 105 de casa, tiene parking delantero, 55 m de terraza y jardín detrás. Tiene 75m2 construidos,en planta baja con habitación doble, de un solar de 151m2: salon, comedor, cocina, habitación doble con armario, baño, 22.5m2 delante como parquig y 55m2 detras como terraza y jardin, posibilidad de piscina. En planta primera tiene 30m2.: Dos habitaciones, un baño, pasillo y 39m2 de terraza LLame ya para acordar y poder hacerlo a su medida, máxima eficiencia energética, posibilidad de Independencia de compañía eléctrica, Le podíamos preparar Con energías renovables como Aerogenerador, placas solares, Baterías, etc. Hermoso chalet en construcción, en venta en Palma de Mallorca, S´hostalot, con una ubicación privilegiada en una zona residencial tranquila. Esta nueva construcción de primeras calidades cuenta con 3 dormitorios, 2 baños y 3 terrazas para disfrutar del clima mediterráneo. Con fácil acceso a la carretera, se encuentra cerca de paradas de autobús, el aeropuerto, bancos y bibliotecas. Con una distribución moderna y espacios luminosos, este chalet es ideal para quienes buscan comodidad y calidad de vida. !No pierdas la oportunidad de adquirir esta propiedad única en una de las zonas más exclusivas de Palma de Mallorca! Construccion Steel Frame. Para mas información vaya a nuestra pagina web y vera todas nuestras ofertas de promociones, ventas y alquileres: www.inmosteelframe.com Enlace con el 2º cinturon de Palma a un kilometro, licencia concedida total construidos 105m2. en dos plantas. Maxima eficiencia energetica. No tiene ningun tipo de comunidat. preinstalacion de aire acondicionado, baño con mueble suspendido, puede elegir entre la memoria de calidades, peinstalación de placas solares, posibilidad de instalación, trabajamos en este tipo de costruicción desde 2002, este sistema es el que se esta imponiendo por muchos motivos: FISCALES, VENTAJAS FINANCIERAS, IBI, etc. Esta promoción son tres casas adosada solo queda esta por terminar. Chalet en construcción,Oportunidad de tener un Moderno chalet adosado en la tranquila urbanización de S`hostalot a 1 klm de Son Ferriol tan solo 4 klm de Palma centro con magnifico precio y calidades, maxima eficiencia energetica, facíl acceso, muy cerca del segundo cinturon de Palma y otras conexiones , 3 kilometros del Hospital Son LLàtzer, paradas de bus,bancos , Colegios,Paques infantiles, Supermercados , Pac Medicos ...No Pierdas Tiempo llamanos para mas informacion lo antes posible. (incluye todo menos: IVA, gastos de escrituras, altas de suministro, notaria y registro.) Si tiene liquidez para que le construyan una casa a su medida, (POSIBILIDAD DE AUTOPROMOCION CON FINANCIACION) nosotros podemos ayudarle en todo el proceso, buscamos solar, por si quiere un unifamiliar, sí lo que necesita es un adosado o un pareado, también lo podríamos organizar buscando otros clientes interesados que tenemos en cartera, PRECIO A CONVENIR

Actualizado: 1 de abril de 2026

28 vistas

Ubicación

Palma de Mallorca, Mallorca , Baleares

Recomendaciones

742 000

3533 €/m²

Chalet en venta , Campos, Baleares

4 dormitorios

2 baños

210 m²

80

869 200

2442 €/m²

Chalet en venta , Mancor de la Vall, Baleares

7 dormitorios

7 baños

356 m²

78

2 950 000

2950 €/m²

Chalet en venta , Muro, Baleares

4 dormitorios

3 baños

1000 m²

78

1 500 000

4286 €/m²

Chalet en venta , Palma de Mallorca, Baleares

5 dormitorios

3 baños

350 m²

78

550 000

2391 €/m²

Chalet en venta , Felanitx, Baleares

2 dormitorios

2 baños

230 m²

78

650 000

4333 €/m²

Chalet en venta , Llucmajor, Baleares

4 dormitorios

3 baños

150 m²

360 000

3273 €/m²

Chalet en venta , Llucmajor, Baleares

2 dormitorios

1 baño

110 m²

78

950 000

2844 €/m²

Chalet en venta , Palma de Mallorca, Baleares

3 dormitorios

3 baños

334 m²

78

1 750 000

4730 €/m²

Chalet en venta , Manacor, Baleares

4 dormitorios

4 baños

370 m²

80

1 500 000

2439 €/m²

Chalet en venta , Santa Eugènia, Baleares

5 dormitorios

3 baños

615 m²

78

Enviar
img
img
img
img
img
img
img
img
img
img
img
img
img
img
img
img
img
img
img
img