Chalet pareado en venta en Algorfa, Algorfa

es
Español
English
Ukraine
Русский
Añadir nuevo listado Anuncio

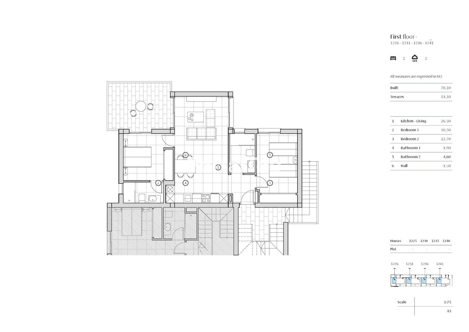
2 dormitorios

2 baños

70 m2

Volver a la búsqueda

232 000

Chalet pareado en venta en Algorfa, Algorfa

Enviar
Profesional GOGO ESTATES

232 000 3 314 €/m²

Chalet pareado en venta en Algorfa, Algorfa

Algorfa, Algorfa, Vega Baja

Ver el mapa

2 dormitorios

2 baños

70 m²

Más Información

  • Piscina

RESIDENCIAL DE OBRA NUEVA EN LA FINCA GOLF Residencial de obra nueva de bungalow apartamentos y adosados en La Finca golf. Modernos bungalows de 2 dormitorios, 2 baños, con cocina abierta integrada con el salón que conecta los dormitorios, baños y terraza. Los bungalows de planta baja disponen de terrazas y jardines, los bungalows de planta alta disponen de terrazas y solariums en la planta superior. Su orientación sur proporciona iluminación natural en cualquier época del año y calefacción natural desde el amanecer hasta la puesta de sol, lo que reduce el consumo de energía. Las propiedades de concepto abierto con ventanas y puertas correderas que permite la ventilación cruzada y deja entrar la luz. Las propiedades están situadas de tal manera, que la luz puede entrar en todas partes, pero al mismo tiempo ofrece algunos rincones frescos y acogedores. La nueva promoción se desarrolla en una increíble parcela donde las viviendas se han ejecutado con un cuidado diseño y amplios espacios para conseguir el máximo confort. Su diseño se centra en la comodidad y el bienestar de sus residentes y combina estilo contemporáneo y carácter mediterráneo, heredando la morfología tradicional con el uso de piedras en fachada y marquesinas. Las cocinas se entregarán completamente amuebladas con un diseño actual de muebles altos y bajos de gran capacidad. Los muebles bajos son en laminado lacado blanco mate y los altos en madera melaminada con textura en las columnas. Perfil tirador semioculto con sistema gola*. Encimera en zona de trabajo y península Quarz Compac Blanco Luna o similar. Puerta principal acorazada con acabado lacado blanco en la hoja interior y textura marrón en la exterior. Mirilla óptica y cerradura de seguridad. Puertas interiores lacadas en blanco, con frente de tres hojas y tiradores rectangulares de acero inoxidable. Armarios empotrados con puertas correderas blancas. Ventanas y puertas correderas en carpintería de aluminio marrón con acabado texturado. Ventanas oscilobatientes en baños, con cristal efecto esmerilado y persianas manuales. Persianas eléctricas y motorizadas, acabadas en aluminio marrón texturado. Todas las persianas están conectadas al sistema domótico y sincronizadas para su cierre y apertura, y se pueden manejar desde la App. Doble acristalamiento especial con control solar y baja emisividad, para aprovechar al máximo la luz natural y ahorrar en costes energéticos. Óptima apariencia estética, color excepcional y mínimo reflejo. Certificación energética clase A Properties ofrece un alto nivel de certificación energética. Esto es posible gracias al aislamiento térmico de techos y paredes, la carpintería de aluminio con doble acristalamiento y la instalación de 5 paneles solares por bloque. Las viviendas están dotadas de las tomas eléctricas y de telecomunicaciones exigidas por el Reglamento Electrotécnico de Baja Tensión. Interfono para la comunicación entre la vivienda y la entrada principal. Incluimos un avanzado sistema domótico para controlar las persianas motorizadas y tres puntos de luz. Mecanismos Legrand serie Valena Next conectables al sistema domótico. Preinstalación de aire acondicionado: central o split según modelo. Sistema de alarma totalmente equipado con un sensor por habitación, panel táctil y sirena. La nueva promoción está situada en La Finca Golf Resort. Está situada junto a la primera línea de golf frente a la calle 11 del campo La Finca Golf, uno de los complejos más emblemáticos del sureste español y refugio habitual de los amantes del golf. Situado a tan sólo 4 minutos de Algorfa, en la Costa Blanca Sur, este complejo con parking cubierto, piscina comunitaria y zonas ajardinadas es el lugar perfecto para aquellos que quieran disfrutar del estilo de vida mediterráneo: proximidad a la playa, al golf y a la montaña, rodeado de tranquilidad, pero con acceso a todo tipo de servicios y zonas de ocio. A pocos minutos de las playas más bellas de la Costa Blanca Sur y de lugares de excepcional belleza como la Laguna Rosa de Torrevieja o las Dunas de Guardamar del Segura. Su proximidad y fácil acceso a la autopista AP-7 y a las principales carreteras nacionales conectan el complejo con numerosas poblaciones de la Costa Blanca como Orihuela, Cartagena, Elche, Murcia y Alicante. Los aeropuertos de Alicante y Murcia se encuentran a menos de 30 minutos en coche con conexiones a las principales capitales europeas.

Actualizado: 9 de marzo de 2026

168 vistas

Ubicación

Algorfa, Algorfa, Vega Baja

Recomendaciones

377 000

3523 €/m²

Chalet pareado en venta en Av. del Salvador, 79, 03170 Rojales, Alicante, Spain, Rojales

3 dormitorios

2 baños

107 m²

387 000

3425 €/m²

Chalet pareado en venta en Av. del Salvador, 79, 03170 Rojales, Alicante, Spain, Rojales

3 dormitorios

2 baños

113 m²

300 500

3577 €/m²

Chalet pareado en venta en Av. de Málaga, 122, 03170 Cdad. Quesada, Alicante, Spain, Rojales

2 dormitorios

2 baños

84 m²

237 900

2766 €/m²

Chalet pareado en venta en Avenida Reverendo, C. Antonio Godoy, 20, 03190 Pilar de la Horadada, Alicante, Spain, Pilar de la Horadada

3 dormitorios

2 baños

86 m²

229 900

2770 €/m²

Chalet pareado en venta en C. Chopin, 22, 03193 San Miguel de Salinas, Alicante, Spain, San Miguel de Salinas

3 dormitorios

2 baños

83 m²

174 900

2691 €/m²

Chalet pareado en venta en C. Chopin, 22, 03193 San Miguel de Salinas, Alicante, Spain, San Miguel de Salinas

2 dormitorios

2 baños

65 m²

325 900

4074 €/m²

Chalet pareado en venta en C. Siglo XXI, 35, 03190 Pilar de la Horadada, Alicante, Spain, Pilar de la Horadada

2 dormitorios

2 baños

80 m²

235 900

3276 €/m²

Chalet pareado en venta en C. Siglo XXI, 35, 03190 Pilar de la Horadada, Alicante, Spain, Pilar de la Horadada

2 dormitorios

2 baños

72 m²

239 900

1831 €/m²

Chalet pareado en venta en C. Zv 54, 13R, 03186 Torrevieja, Alicante, Spain, Torrevieja

2 dormitorios

2 baños

131 m²

253 500

2755 €/m²

Chalet pareado en venta en C. Rda. de Levante, 99, 03190 Pilar de la Horadada, Alicante, Spain, Pilar de la Horadada

3 dormitorios

3 baños

92 m²

Enviar
img
img
img
img
img
img
img
img
img
img
img
img
img
img
img
img
img
img
img
img
img
img
img
img
img
img
img
img
img
img
img
img
img
img
img
img
img
img
img
img
img
img
img
img
img
img
img
img
img
img