669840017
Profesional
AC ASESORES, FISCAL, LABORAL Y CONTABLE, S.C.P.
Referencia del anuncio
25000172
9 dormitorios
9 baños
776 m2
80
1 /16
4 242 000 € 5 466 €/m²
Calle Terraza, Estepona, Costa del Sol Occidental - Zona de Estepona, Málaga
9 dormitorios
9 baños
776 m²
80
Más Información
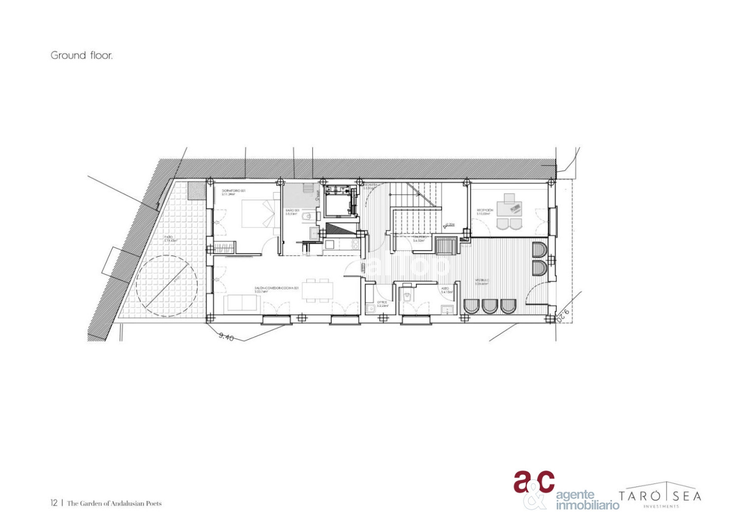
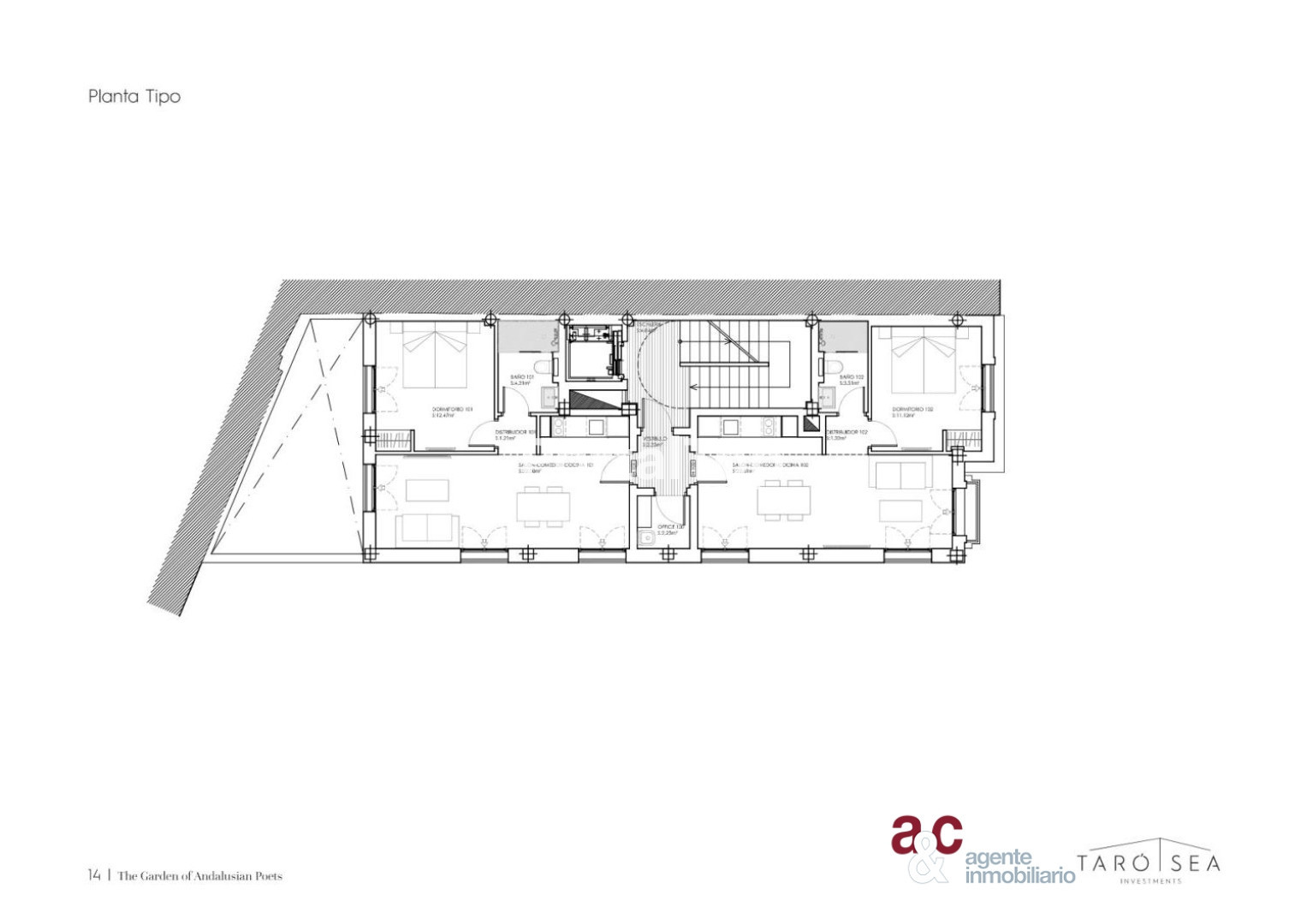
NUEVO EDIFICIO DE APARTAMENTOS TURISTICOS u HOTEL BOUTIQUE, de nueva construcción en el mismo centro histórico-urbano de Estepona. Excelente oportunidad de inversión. Nuevo edificio de 9 apartamentos turísticos, situado en pleno centro de Estepona, a escasos 50 metros de una de sus calles más comerciales y con más tránsito peatonal, a sólo 5 minutos paseando del paseo marítimo y playa de La Rada. Edificio de diseño muy elegante y funcional, realizado por arquitecto local de reconocida y gran trayectoria. El edificio combina la elegancia clásica con un diseño contemporáneo. Fachadas con muchas ventanas que favorecen la ventilación y la iluminación natural, acabados de alta calidad, molduras, carpintería clásica y una paleta de colores en blanco y negro que aporta sofisticación y amplitud. Se distribuye en PLANTA BAJA + CUATRO + SOLARIUM. Cocinas y Baños completamente amueblados, listo para comenzar la actividad de alquiler turístico u hotel desde su primer día. En planta baja tenemos la recepción + Un apartamento adaptado para personas con movilidad reducida. En las plantas de 1ª a 4ª, cada planta cuenta con DOS apartamentos de UN dormitorio y una zona reservada para servicio de limpieza en el hall central por planta. Corona el edificio un espectacular Solárium/terraza con zona común de lavandería, zona de descanso y zona para tomar el sol con impresionantes vistas al mar y todo el pueblo. Ascensor con acceso a todas las plantas. Zona de trastero para almacenaje y logística diaria del hotel. El edificio cuenta con un anexo con TRES plazas de garaje privadas cubiertas. El estado actual del edificio es a un 90% de la construcción, se prevé finalización de obras abril 2.026 y entrega del edificio totalmente acondicionado para junio 2.026 Registro de Turismo, en tramitación ante la Junta de Andalucía. Esta inversión garantizar máxima rentabilidad desde su compra y puesta en funcionamiento. Estepona es la población con mayor crecimiento y atractivo turístico de toda la Costa del Sol.
Actualizado: Ayer
7 vistas
Calle Terraza, Estepona, Costa del Sol Occidental - Zona de Estepona, Málaga
Recomendaciones
Dinos qué error has visto
Local en venta en Calle Terraza, Estepona, Málaga
Esta información se transmite a nuestro equipo de calidad en PortalTop y al anunciante, pero no se le identificará.
Hacer una contraoferta
Precio actual: 4 242 000 euros
Recibe una alerta si hay una rebaja de precio
¡Gracias por contactarnos!
Tu mensaje se ha enviado a AC ASESORES, FISCAL, LABORAL Y CONTABLE, S.C.P..
669840017
Profesional
AC ASESORES, FISCAL, LABORAL Y CONTABLE, S.C.P.
Referencia del anuncio
25000172
¿Qué es un período de prueba?
El período de prueba te permite publicar tu propiedad completamente gratis hasta el 2025.12.01. Para ello, debes vincular tu tarjeta en la sección 'Suscripciones'.