Piso Venta Alicante

es
Español
English
Українська
Русский
Añadir nuevo listado Anuncio

2 dormitorios

1 baño

55 m2

78

Volver a la búsqueda

200 000

Piso Venta Alicante

Enviar
Profesional Inmocosta

200 000 3 636 €/m²

Piso Venta Alicante

Alicante / Alacant, Alacantí, Alicante

Ver el mapa

2 dormitorios

1 baño

55 m²

78

Más Información

  • Garaje

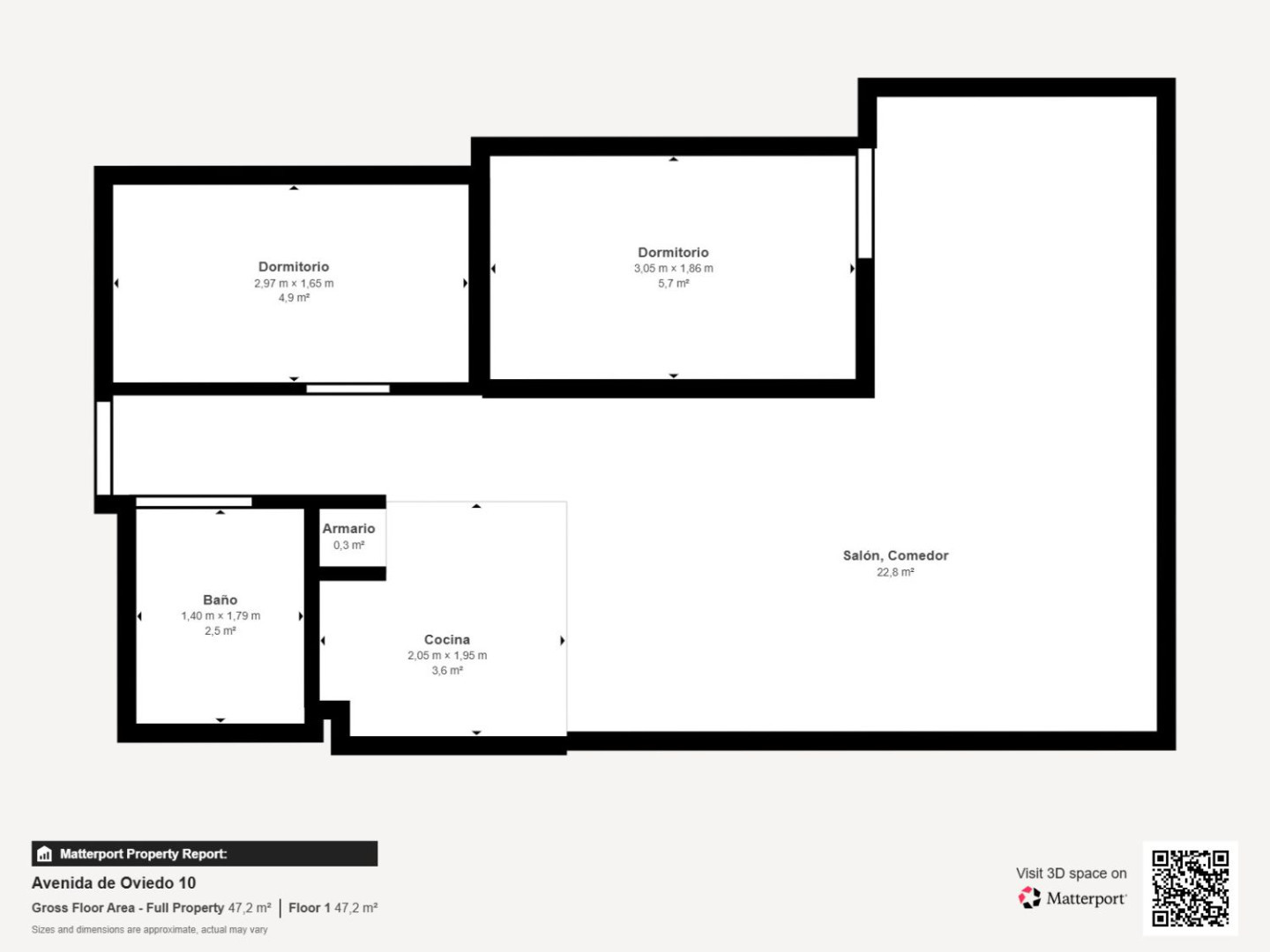
Playa de San Juan Presentamos esta luminosa vivienda totalmente reformada, situada en una de las zonas más exclusivas y demandadas de la Playa de San Juan. La vivienda en origen de un dormitorio y tras haber sido reformada íntegramente se ha conseguido una segunda habitación (interior), por lo tanto actualmente dispone de dos habitaciones destinadas a dormitorio, además, cuenta con un amplio salón-comedor, cocina americana y un baño completo. Desde sus estancias se disfrutan excelentes vistas despejadas, aportando una gran sensación de amplitud y bienestar. La urbanización ofrece magníficas zonas comunes, entre las que destacan: Piscina comunitaria Plaza de aparcamiento Aparcamiento para bicicletas Jardines comunitarios Parque infantil Su ubicación es inmejorable, a muy pocos metros de la playa de San Juan, con zona comercial a un paso, excelente conexión con bus y TRAM, y próxima a puntos de referencia como el Hospital de San Juan y el Parque La Marjal. Una oportunidad única para disfrutar del mejor estilo de vida mediterráneo, en un entorno tranquilo y perfectamente comunicado. ¿UNA VISITA? AVISO LEGAL: La información contenida en esta descripción y observaciones es meramente informativa, puede contener errores y carece de efectos jurídicos vinculantes.

Actualizado: Hoy

1 vistas

Ubicación

Alicante / Alacant, Alacantí, Alicante

Recomendaciones

128 000

582 €/m²

Piso en venta , Alicante / Alacant, Alicante

7 dormitorios

2 baños

220 m²

189 000

2124 €/m²

Piso en venta , Alicante / Alacant, Alicante

3 dormitorios

2 baños

89 m²

78

249 000

2371 €/m²

Piso en venta , Alicante / Alacant, Alicante

3 dormitorios

2 baños

105 m²

79

549 000

6033 €/m²

Piso en venta , Alicante / Alacant, Alicante

2 dormitorios

2 baños

91 m²

78

240 000

1805 €/m²

Piso en venta , Alicante / Alacant, Alicante

4 dormitorios

2 baños

133 m²

136 000

1971 €/m²

Piso en venta , Alicante / Alacant, Alicante

2 dormitorios

2 baños

69 m²

245 000

1944 €/m²

Piso en venta , Alicante / Alacant, Alicante

4 dormitorios

2 baños

126 m²

180 000

2647 €/m²

Piso en venta , Alicante / Alacant, Alicante

1 dormitorio

1 baño

68 m²

143 000

1300 €/m²

Piso en venta , Alicante / Alacant, Alicante

3 dormitorios

2 baños

110 m²

78

219 000

1531 €/m²

Piso en venta , Alicante / Alacant, Alicante

4 dormitorios

2 baños

143 m²

Enviar
img
img
img
img
img
img
img
img
img
img
img
img
img
img
img
img
img
img
img
img
img
img
img
img
img
img
img
img
img
img
img
img
img
img
img
img
img
img
img
img
img
img
img
img
img
img
img
img
img
img
img
img
img
img
img
img
img
img
img
img