Precioso Piso a Estrenar en Barrio de Salamanca

es
Español
English
Ukraine
Русский
Añadir nuevo listado Anuncio

2 dormitorios

3 baños

98 m2

156

Volver a la búsqueda

1 290 000

Precioso Piso a Estrenar en Barrio de Salamanca

Enviar
Profesional K&N ELITE

1 290 000 13163 €/m²

Precioso Piso a Estrenar en Barrio de Salamanca

Madrid Capital, Madrid, Zona de, Madrid

Ver el mapa

2 dormitorios

3 baños

98 m²

156

Más Información

  • 84

Comodidades

  • Aire acondicionado
  • 139

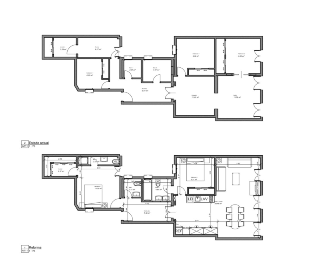
K&N ELITE le ofrece esta vivienda exterior de 100,00 m2, recientemente reformada íntegramente con materiales de primera calidad, distribuida en 2 habitaciones (ambas con baño en suite) y 1 aseo de cortesia, amplio salón y cocina semintegrada (con lavadero independiente), totalmente equipada con electrodomésticos de primera calidad. Así mismo se encuentra amueblada completamente. Equipamiento de la vivienda: Aire Acondicionado centralizado en todas las estancias, armarios empotrados, pintura lisa, pavimento laminado de CORETEC y porcelánicos en las zonas húmedas formato 40X120, aislamiento perimetral térmico y acústico que reduce significativamente los consumos de calefacción y aire acondicionado. Disponemos de memoria de calidades. La vivienda goza de mucha luz natural, al ser una 2ª planta exterior, con terraza y 1 mirador cerrado (en total 3 ventanales exteriores), el edificio tiene una fachada clásica. Ubicación y comunicaciones inmejorables: la vivienda se encuentra ubicada en una de las principales calles del Barrio de Salamanca, con máxima seguridad, muy próxima a El Corte Inglés De Goya, con varias lineas de autobuses muy cercanas (L26, L61 y N3) y 2 estaciones de metro muy próximas (Goya y Lista - L2 y L4).

Actualizado: 25 de enero de 2026

254 vistas

Ubicación

Madrid Capital, Madrid, Zona de, Madrid

Recomendaciones

400 000

4082 €/m²

Piso en venta , Madrid Capital, Madrid

2 dormitorios

3 baños

98 m²

156

350 000

3571 €/m²

Piso en venta , Madrid Capital, Madrid

2 dormitorios

3 baños

98 m²

156

350 000

3571 €/m²

Piso en venta , Madrid Capital, Madrid

2 dormitorios

3 baños

98 m²

156

199 000

2031 €/m²

Piso en venta , Madrid Capital, Madrid

2 dormitorios

3 baños

98 m²

156

130 000

1327 €/m²

Piso en venta , Madrid Capital, Madrid

2 dormitorios

3 baños

98 m²

156

166 000

1694 €/m²

Piso en venta , Madrid Capital, Madrid

2 dormitorios

3 baños

98 m²

156

156 000

1592 €/m²

Piso en venta , Madrid Capital, Madrid

2 dormitorios

3 baños

98 m²

156

190 000

1939 €/m²

Piso en venta , Madrid Capital, Madrid

2 dormitorios

3 baños

98 m²

156

185 000

1888 €/m²

Piso en venta , Madrid Capital, Madrid

2 dormitorios

3 baños

98 m²

156

450 000

4592 €/m²

Piso en venta , Madrid Capital, Madrid

2 dormitorios

3 baños

98 m²

156

Enviar
img
img
img
img
img
img
img
img
img
img
img
img
img
img
img
img
img
img
img
img
img
img
img
img
img
img
img
img
img
img
img
img
img
img
img
img
img
img
img
img
img
img
img
img
img
img
img
img
img
img
img
img
img
img
img
img
img
img
img
img
img
img
img
img
img
img
img
img
img
img
img
img
img
img
img
img
img
img
img
img