Solar Venta Castellón

es
Español
English
Українська
Русский
Añadir nuevo listado Anuncio

4327 m2

Volver a la búsqueda

399 000

Solar Venta Castellón

Enviar
Profesional GRUPIN, S.A.

399 000 92 €/m²

Solar Venta Castellón

Burriana / Borriana, Plana Baixa, Castellón

Ver el mapa

4327 m²

Más Información

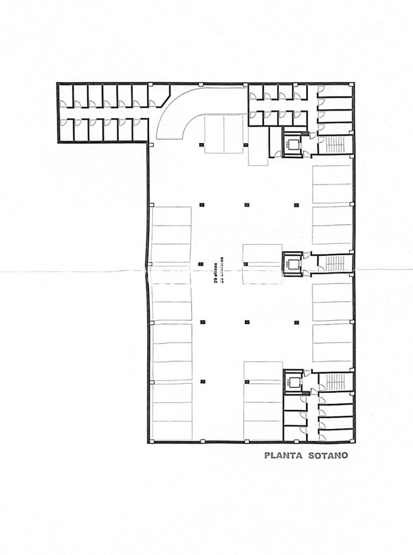
En Burriana, SOLAR URBANO céntrico, situado en calle Federico García Moliner, nº 27. Muy bien ubicado, a 3 minutos del centro, rodeado de cafeterías, comercios, supermercados MERCADONA, CONSUM, MAS Y MAS, DIA, ALDI y LIDL, colegios, Instituto, Centro de salud, piscina municipal, polideportivo, muy cerca de la playa, de los puertos pesquero y deportivo, así como del paraje natural protegido "Clot de la Mare de Deu". Presentamos estudio de construcción del edificio con todas las plantas: sótano, baja, 1ª, 2ª, 3ª y 4ª. El conjunto del edificio estaría formado por 29 viviendas (27 viviendas de 3 dormitorios + 2 baños, con superficie útil de 96 m2 y 2 viviendas de 2 dormitorios + 2 baños), 29 plazas de garaje y 29 trasteros en sótano. Se puede reducir la superficie del vestidor de la vivienda de 3 hab. a 90 m2 útiles. La superficie de la parcela es de 1.098 m2 y su edificabilidad 4.327 m2t. PRECIO ALQUILER SOLAR URBANO: 1.600 €/mes + IVA. PRECIO VENTA SOLAR URBANO: 399.000 € + IVA. El precio de venta y alquiler no incluye IMPUESTOS ni OTROS GASTOS. Ref: X00009.

Actualizado: Hoy

7 vistas

Ubicación

Burriana / Borriana, Plana Baixa, Castellón

Recomendaciones

510 400

Terreno en venta en Calle Mestre y Peris, 2, Onda, Castellón

0 m²

114 400

Terreno en venta en Avenida Luxemburgo, 67, Onda, Castellón

0 m²

59 381

Terreno en venta , Burriana / Borriana, Castellón

0 m²

57 500

Terreno en venta , Burriana / Borriana, Castellón

0 m²

4 842 405

Terreno en venta , Onda, Castellón

0 m²

60 000

Terreno en venta , La Vall d'Uixó, Castellón

0 m²

160 000

267 €/m²

Terreno en venta , La Vall d'Uixó, Castellón

600 m²

50 000

Terreno en venta , Moncofa, Castellón

0 m²

88 880

220 €/m²

Terreno en venta , La Vall d'Uixó, Castellón

404 m²

44 440

220 €/m²

Terreno en venta , La Vall d'Uixó, Castellón

202 m²

Enviar
img
img
img
img
img
img
img
img
img
img
img
img
img
img
img
img
img
img
img
img
img
img
img
img
img
img
img
img
img
img