956330050
Profesional
Inmobiliaria Fonkal
Referencia del anuncio
0
5 dormitorios
2 baños
1058 m2
1 /14
5 dormitorios
2 baños
1058 m²
Más Información
Solar urbano finalista junto a la iglesia del popular barrio de Santiago.
*** Si quieres ahorrar mucho tiempo y optimizar tu inversión, atentos a este anuncio ***
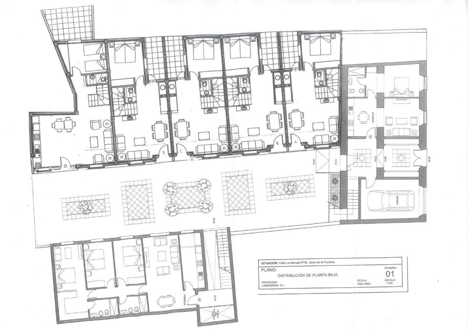
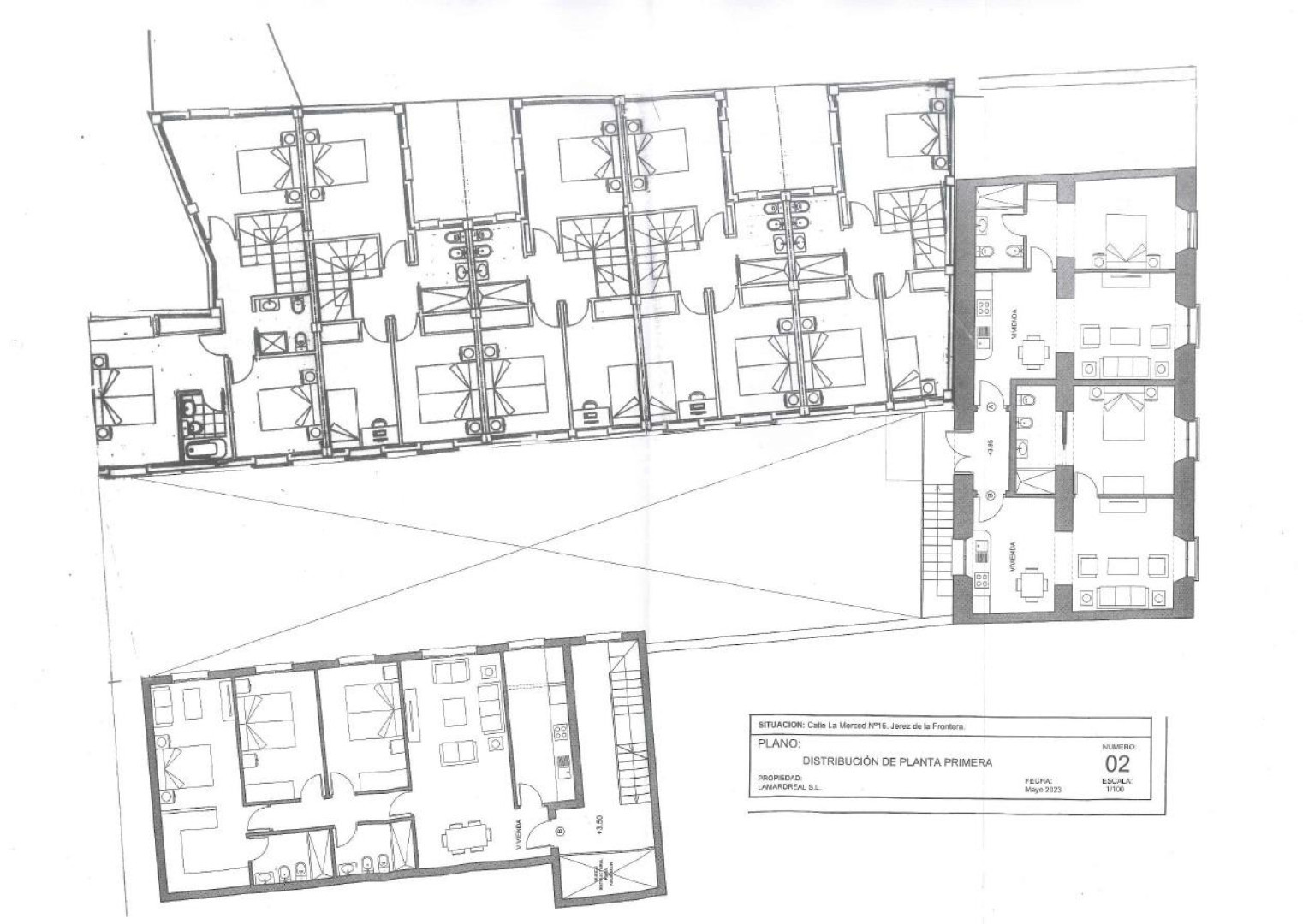
Solar urbano finalista, en pleno centro de Jerez de La Frontera, en el barrio de Santiago listo para empezar a construir viviendas unifamiliares, apartamentos y unos 14 garajes subterráneos.
El solar lo componen dos fincas registrales, calle La Merced nº14 y 16, actualmente cuenta con proyecto de ejecución visado por el colegio de Arquitectos y su licencia concedida por el Ayuntamiento.
En el solar resultante, se pueden edificar 5 viviendas unifamiliares, 3 viviendas tipo apartamentos y en la planta sótano se pueden realizar hasta 14 garajes.
Si estás interesado en conocer más a fondo dicho proyecto, no dudes en llamarnos y ampliaremos la información
De acuerdo con lo prevenido en el Decreto 218/2005, de 11 de octubre, se informa al cliente que los gastos notariales, registrales,
L.T. P. , honorarios de intermediación, gastos financieros, y otros gastos inherentes a la compraventa no están incluidos en el precio.
Por mandato expreso del propietario, comercializamos este inmueble en exclusiva, lo que le garantiza el acceso a toda la información, a un servicio de calidad, un trato fácil, sencillo y sin interferencias de terceros. Por este motivo, se ruega no molestar al propietario, a los ocupantes de la propiedad o a los vecinos. Muchas gracias por su comprensión. Si usted es agente inmobiliario y tiene un cliente para este inmueble, llámenos: estaremos encantados de colaborar.
Actualizado: Hoy
1 vistas
Jerez de la Frontera, Campiña de Jerez , Cadiz
Recomendaciones
Dinos qué error has visto
Terreno en venta , Jerez de la Frontera, Cadiz
Esta información se transmite a nuestro equipo de calidad en PortalTop y al anunciante, pero no se le identificará.
Hacer una contraoferta
Precio actual: 165 000 euros
Recibe una alerta si hay una rebaja de precio
¡Gracias por contactarnos!
Tu mensaje se ha enviado a Inmobiliaria Fonkal.
956330050
Profesional
Inmobiliaria Fonkal
Referencia del anuncio
0
¿Qué es un período de prueba?
El período de prueba te permite publicar tu propiedad completamente gratis hasta el 2025.12.01. Para ello, debes vincular tu tarjeta en la sección 'Suscripciones'.